※西日本エリアにて2025年1月15日より営業エリアにおいて変更があります。

| 工事時期: | 2017年6月 |
|---|---|
| 工事内容: | アンダーピニング沈下修正工事 (家の傾き修正) |
| 基礎の形状: | ベタ基礎 |
| 鋼管杭箇所数: | 14箇所 |
|---|---|
| 鋼管杭最長圧入長さ: | 24.6m |
| 最大圧入t(トン)数: | 10t |
| 基礎補強長さ: | 34m |
|---|---|
| ジャッキアップ(持ち上げ)箇所数: | 12箇所 |
| ジャッキアップ(持ち上げ)量: | 95mm |


家の傾きの施工前の状態から、どのような工事内容を行って、
最終的にどのような形で工事を終えたのかを紹介しています。

熊本地震の影響で傾いたとのことです。建築当時から地盤が悪かったのか建築時に沈下防止のコンクリート杭が施行されていましたが、そのコンクリート杭ごと沈下してしまったようです。ベタ基礎のしっかりとした基礎の家でしたので家全体が均一に傾いている状態でした。

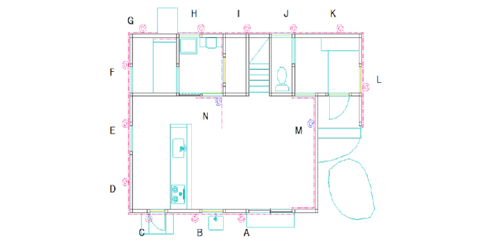
は鋼管杭を圧入する箇所
は基礎補強・帯鉄板で補強を行う箇所
施行計画では全体矯正を行うことでしっかりと全体をよくする計画としました。
また、もともと懸念されていた地盤があまりよくないということも踏まえて鋼管杭の径を通常つかうものより一回り太くしました。

全体矯正での家の傾き修正だったので、家全体の傾きはなくなりほぼ水平になりました。また、建築当初に施行されていたコンクリート杭があったのに沈下したというのは、おそらくは地盤調査をした地盤の深さが均一ではなかったことによるものだと思います。オプトの杭施工の場合は、建物がすでに建っていてその建物の重さ利用し支えるのに十分な深さまで杭を施工するため施工後の再沈下はなくなります。





















熊本県の施工実績一覧です。
合計工事件数:13件
オプトのアンダーピニング修正工事では、下記の項目が重要な要素となります。
基礎の形状、杭数、最長杭の長さや基礎補強の長さによって工期や施工価格が決定しています。
参考にしたいリストをクリックすると詳細をご覧いただけます。
※一部、詳細をご覧いただけない施工事例もあります。
| 場所 | 時期 | 工事名 | 基礎形状 | 杭数 (本) |
最長杭の 長さ (m) |
基礎補強の 長さ (m) |
持ち上げ量 (mm) |
|---|---|---|---|---|---|---|---|
| 熊本市西区谷尾崎町 | 2023年2月 |
アンダーピニング沈下修正工事 家の傾き修正 |
ベタ基礎 | 36 | 18.5 | 86 | 320 |
| 熊本市北区池田 | 2022年4月 |
アンダーピニング沈下修正工事 家の傾き修正 |
布基礎 + コンクリートブロック基礎 | 14 | 17.5 | 39 | 85 |
| 熊本市西区花園 | 2021年11月 |
アンダーピニング沈下修正工事 家の傾き修正 |
コンクリートブロック布基礎 | 18 | 15.8 | 64 | 90 |
| 八代市島田町 | 2020年9月 |
アンダーピニング沈下修正工事 家の傾き修正 |
ベタ基礎 | 18 | 7.8 | 43 | 70 |
| 熊本市中央区黒髪 | 2019年4月 |
アンダーピニング沈下修正工事 家の傾き修正 |
ベタ基礎 | 12 | 9.6 | 33 | 70 |
| 宇土市花園台 | 2018年10月 |
アンダーピニング沈下修正工事 家の傾き修正 |
ベタ基礎 | 17 | 9.3 | 37 | 82 |
| 熊本市東区若葉 | 2018年9月 |
アンダーピニング沈下修正工事 家の傾き修正 |
ベタ基礎 | 16 | 18.2 | 44 | 95 |
| 八代市島田町 | 2018年1月 |
アンダーピニング沈下修正工事 家の傾き修正 |
ベタ基礎 | 15 | 16.3 | 38 | 60 |
| 上益城郡嘉島町下六嘉 | 2017年11月 |
アンダーピニング沈下修正工事 家の傾き修正 |
基礎無し、束石、束柱(古民家) | - | - | 29 | 69 |
| 熊本市東区小山 | 2017年6月 |
アンダーピニング沈下修正工事 家の傾き修正 |
ベタ基礎 | 14 | 24.6 | 34 | 95 |
| 熊本市南区城南町宮地 | 2017年2月 |
アンダーピニング沈下修正工事 家の傾き修正 |
布基礎 | 8 | 16.8 | 35 | 100 |
| 上益城郡益城町広崎 | 2017年2月 |
アンダーピニング沈下修正工事 家の傾き修正 |
ベタ基礎 | 13 | 14.4 | 35 | 35 |
| 上益城郡益城町馬水 | 2017年1月 |
アンダーピニング沈下修正工事 家の傾き修正 |
ベタ基礎 | 13 | 23.2 | 47 | 82 |
場所:施工場所
時期:施工時期
工事名:どのような工事を行ったか
価格帯(税込):おおよその価格帯
基礎形状:基礎の形状(ベタ基礎/布基礎/無筋布基礎/ブロック基礎など)
杭数(本):鋼管杭を施工した箇所本数
最長杭の長さ(m):鋼管杭が最長何m地中に入って家屋を支えているかのメートル数
基礎補強の長さ(m):基礎に鉄板を施工し、基礎の補強を行った範囲
持ち上げ量(mm):ジャッキアップにより家屋を持ち上げた量