※西日本エリアにて2025年1月15日より営業エリアにおいて変更があります。

| 工事時期: | 2018年4月 |
|---|---|
| 工事内容: | アンダーピニング沈下修正工事 (家の傾き修正) |
| 基礎の形状: | 布基礎 |
| 鋼管杭箇所数: | 3箇所 |
|---|---|
| 鋼管杭最長圧入長さ: | 2.7m |
| 最大圧入t(トン)数: | 7.5t |
| 基礎補強長さ: | 10m |
|---|---|
| ジャッキアップ(持ち上げ)箇所数: | 3箇所 |
| ジャッキアップ(持ち上げ)量: | 16mm |


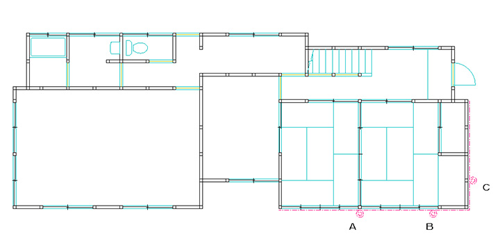
家の傾きの施工前の状態から、どのような工事内容を行って、
最終的にどのような形で工事を終えたのかを紹介しています。

初期計測では、仏間の角だけ部分的に傾きを生じていました。そのほかの箇所では、ほぼ気にならない状況でした。

は鋼管杭を圧入する箇所
は基礎補強・帯鉄板で補強を行う箇所
施工計画では、傾きの生じている仏間の角の一部分だけをジャッキアップする計画をしましたが、極端に一箇所だけにするとバランスがわるくなったり一部分に加わる荷重が大きくなるため、オプト独自の基礎補強と持ち上げ箇所を3点にすることで、無理なくジャッキアップし施工後の再沈下防止もしっかりできるように計画しました。

施工計画通り、しっかりと沈下の生じていた箇所は直りました。また、部分的な沈下で建物の荷重が集中してバランスが悪くなっていたものを負担を取り除くことができました。今後は、施工箇所において再沈下の不安はなくなります。















サッシ窓 施工前

サッシ窓 施工後
広島県の施工実績一覧です。
合計工事件数:125件
オプトのアンダーピニング修正工事では、下記の項目が重要な要素となります。
基礎の形状、杭数、最長杭の長さや基礎補強の長さによって工期や施工価格が決定しています。
参考にしたいリストをクリックすると詳細をご覧いただけます。
※一部、詳細をご覧いただけない施工事例もあります。
| 場所 | 時期 | 工事名 | 基礎形状 | 杭数 (本) |
最長杭の 長さ (m) |
基礎補強の 長さ (m) |
持ち上げ量 (mm) |
|---|---|---|---|---|---|---|---|
| 廿日市市須賀 | 2024年6月 |
アンダーピニング沈下修正工事 家の傾き修正 |
布基礎 | 6 | 5.6 | 24 | 12 |
| 廿日市市廿日市 | 2023年12月 |
アンダーピニング沈下修正工事 家の傾き修正 |
石基礎 | 14 | 5.3 | 31 | 57 |
| 広島市安佐北区小河原町 | 2023年9月 |
アンダーピニング沈下修正工事 家の傾き修正 |
布基礎 | 9 | 2.5 | 30 | 55 |
| 安芸高田市向原町 | 2023年8月 |
アンダーピニング沈下修正工事 家の傾き修正 |
布基礎 | 11 | 4.5 | 36 | 56 |
| 安芸高田市吉田町吉田 | 2023年7月 |
アンダーピニング沈下修正工事 家の傾き修正 |
布基礎 | 8 | 5.3 | 31 | 60 |
| 神石郡神石高原町 | 2023年6月 |
アンダーピニング沈下修正工事 家の傾き修正 |
布基礎 | 9 | 4.4 | 31 | 54 |
| 広島市安佐南区川内 | 2023年5月 |
アンダーピニング沈下修正工事 家の傾き修正 |
ベタ基礎 | 10 | 5.5 | 30 | 30 |
| 廿日市市上平良 | 2023年4月 |
アンダーピニング沈下修正工事 家の傾き修正 |
布基礎 | 3 | 1.6 | 22 | 30 |
| 広島市安佐北区三入南 | 2023年3月 |
アンダーピニング沈下修正工事 家の傾き修正 |
布基礎 | 5 | 2.5 | 18 | 21 |
| 広島市安芸区阿戸町 | 2022年12月 |
アンダーピニング沈下修正工事 家の傾き修正 |
布基礎 | 8 | 5 | 16 | 20 |
| 広島市安佐南区伴東 | 2022年11月 |
アンダーピニング沈下修正工事 家の傾き修正 |
布基礎 | 16 | 11.9 | 51 | 109 |
| 安芸高田市美土里町横田 | 2022年10月 |
アンダーピニング沈下修正工事 家の傾き修正 |
ベタ基礎 | 5 | 3.8 | 18 | 25 |
| 広島市安佐南区長楽寺 | 2022年9月 |
アンダーピニング沈下修正工事 家の傾き修正 |
布基礎 | 20 | 7.4 | 41 | 100 |
| 山県郡北広島町 | 2022年9月 |
アンダーピニング沈下修正工事 家の傾き修正 |
布基礎 | 9 | 8.8 | 29 | 45 |
| 広島市東区馬木 | 2022年7月 |
アンダーピニング沈下修正工事 家の傾き修正 |
布基礎 | 8 | 3.9 | 28 | 40 |
| 広島市安芸区中野東 | 2022年4月 |
アンダーピニング沈下修正工事 家の傾き修正 |
布基礎 | 8 | 9.4 | 23 | 35 |
| 広島市安佐南区長楽寺 | 2022年2月 |
アンダーピニング沈下修正工事 家の傾き修正 |
布基礎 | 20 | 8.7 | 61 | 85 |
| 広島市南区丹那新町 | 2021年12月 |
アンダーピニング沈下修正工事 人工地盤沈下防止 |
RC造 | 11 | 5.6 | - | 0 |
| 広島市安佐南区川内 | 2021年10月 |
アンダーピニング沈下修正工事 家の傾き修正 |
布基礎 | 5 | 5.5 | 22 | 21 |
| 広島市安佐北区亀山南 | 2021年10月 |
アンダーピニング沈下修正工事 家の傾き修正 |
布基礎 | 6 | 4.1 | 22 | 72 |
| 広島市西区南観音 | 2021年9月 |
基礎新設 沈下防止工事 |
布基礎 | 4 | 24 | 9 | 0 |
| 広島市東区牛田早稲田 | 2021年8月 |
アンダーピニング沈下修正工事 家の傾き修正 |
布基礎 | 11 | 6.9 | 34 | 70 |
| 広島市安佐南区川内 | 2021年5月 |
アンダーピニング沈下修正工事 家の傾き修正 |
布基礎 | 4 | 6.8 | 11 | 28 |
| 廿日市市 | 2021年2月 |
アンダーピニング沈下修正工事(家の傾き修正) 家の傾き修正 |
布基礎 | 7 | 9.5 | 17 | 48 |
| 三次市 | 2021年2月 |
アンダーピニング沈下修正工事(家の傾き修正) 家の傾き修正 |
ベタ基礎 | 17 | 9.9 | 32 | 50 |
| 広島市安佐北区口田南 | 2020年12月 |
アンダーピニング沈下修正工事 家の傾き修正 |
布基礎 | 16 | 5.9 | 37 | 60 |
| 安芸高田市 | 2020年4月 |
アンダーピニング沈下修正工事 家の傾き修正 |
ブロック基礎 | 4 | 7.4 | 16 | 11 |
| 安芸郡府中町桜ヶ丘 | 2020年3月 |
アンダーピニング沈下修正工事 家の傾き修正 |
コンクリートブロック基礎 | 8 | 6 | 26 | 50 |
| 安芸郡府中町桜ヶ丘 | 2020年3月 |
アンダーピニング沈下修正工事 家の傾き修正 |
コンクリートブロック基礎 | 8 | 4.5 | 25 | 51 |
| 神石郡神石高原町近田 | 2020年3月 |
アンダーピニング沈下修正工事 家の傾き修正 |
独立基礎 | 6 | 3.8 | 2.5 | 31 |
| 安芸高田市向原町 | 2019年12月 |
アンダーピニング沈下修正工事 家の傾き修正 |
ベタ基礎 | 9 | 11.1 | 28 | 55 |
| 広島市坂町小屋浦 | 2019年9月 |
アンダーピニング沈下修正工事 家の傾き修正 |
ベタ基礎 | 14 | 4.1 | 32 | 80 |
| 広島市新庄町 | 2019年9月 |
アンダーピニング沈下修正工事 家の傾き修正 |
布基礎 | 14 | 5.7 | 32 | 32 |
| 呉市広町田 | 2019年8月 |
アンダーピニング沈下修正工事 家の傾き修正 |
ベタ基礎 | 10 | 5.8 | 24 | 50 |
| 三次市畠敷町 | 2019年8月 |
アンダーピニング沈下修正工事 家の傾き修正 |
基礎無し | 0.5 | - | - | 400 |
| 竹原市吉名町 | 2019年6月 |
アンダーピニング沈下修正工事 家の傾き修正 |
コンクリートブロック基礎 | 18 | 14.1 | 70 | 60 |
| 広島市小河原町 | 2019年5月 |
アンダーピニング沈下修正工事 家の傾き修正 |
石基礎 | 3 | 2.2 | 7 | 49 |
| 江田島市鷲部 | 2019年4月 |
アンダーピニング沈下修正工事 家の傾き修正 |
布基礎 | 9 | 7.2 | 26 | 32 |
| 広島市西区己斐上 | 2019年3月 |
アンダーピニング沈下修正工事 家の傾き修正 |
布基礎 | 7 | 8.1 | 30 | 55 |
| 広島市安佐北区白木町大字三田 | 2019年3月 |
アンダーピニング沈下修正工事 家の傾き修正 |
布基礎 | 8 | 2.9 | 25 | 60 |
| 広島市府中町浜田 | 2019年2月 |
アンダーピニング沈下修正工事 家の傾き修正 |
布基礎 | 18 | 6.4 | 58 | 70 |
| 広島市安佐北区白木町大字志路 | 2019年2月 |
アンダーピニング沈下修正工事 家の傾き修正 |
布基礎 | 1 | 5.6 | 2 | 5 |
| 広島市新庄町 | 2019年1月 |
アンダーピニング沈下修正工事 家の傾き修正 |
布基礎 | 21 | 10.4 | 61 | 94 |
| 広島市府中町浜田 | 2018年11月 |
アンダーピニング沈下修正工事 家の傾き修正 |
布基礎 | 8 | 7 | 25 | 45 |
| 広島市吉田町 | 2018年8月 |
アンダーピニング沈下修正工事 家の傾き修正 |
石基礎 | 6 | 4.9 | 13 | 70 |
| 広島市佐伯区倉重 | 2018年7月 |
アンダーピニング沈下修正工事 家の傾き修正 |
石基礎 | 23 | 4.4 | 35 | 40 |
| 広島市安佐北区亀山 | 2018年4月 |
アンダーピニング沈下修正工事 家の傾き修正 |
布基礎 | 3 | 2.7 | 10 | 16 |
| 安芸高田市吉田町 | 2017年12月 |
アンダーピニング沈下修正工事 家の傾き修正 |
基礎無し | - | - | - | 90 |
| 広島市安佐北区亀山 | 2017年12月 |
アンダーピニング沈下修正工事 家の傾き修正 |
布基礎 | 11 | 4.1 | 35 | 49 |
| 広島市安佐北区落合南 | 2017年11月 |
アンダーピニング沈下修正工事 家の傾き修正 |
基礎無し | - | - | - | 13 |
| 広島市安佐南区大町西 | 2017年9月 |
アンダーピニング沈下修正工事 家の傾き修正 |
布基礎 | 7 | 10.9 | 16 | 34 |
| 広島市佐伯区皆賀 | 2017年7月 |
アンダーピニング沈下修正工事 家の傾き修正 |
布基礎 | 7 | 12.9 | 29 | 10 |
| 広島市安芸区中野 | 2017年7月 |
既存基礎撤去 及び 基礎新設工事 |
布基礎 | - | - | - | - |
| 広島市安佐北区白木町三田 | 2017年3月 |
アンダーピニング沈下修正工事 家の傾き修正 |
布基礎 | 15 | 7.9 | 43 | 66 |
| 広島市- | 2017年2月 |
アンダーピニング沈下修正工事 家の傾き修正 |
布基礎 | 10 | 4.4 | 24 | 42 |
| 広島市- | 2017年1月 |
アンダーピニング沈下修正工事 家の傾き修正 |
布基礎 | 12 | 8 | 52 | 94 |
| 山県郡北広島町有田 | 2016年10月 |
アンダーピニング沈下修正工事 家の傾き修正 |
布基礎 | 10 | 5.7 | 32 | 50 |
| 広島市- | 2016年9月 |
アンダーピニング沈下修正工事 家の傾き修正 |
布基礎 | 13 | 5.1 | 40 | 100 |
| 広島市南区元宇品町 | 2016年7月 |
アンダーピニング沈下修正工事 家の傾き修正 |
布基礎 | 8 | 5.5 | 19 | 100 |
| 広島市西区己斐上 | 2016年7月 |
アンダーピニング沈下修正工事 家の傾き修正 |
布基礎 | 6 | 2.8 | 23 | 26 |
| 広島市安佐南区相田 | 2016年7月 |
アンダーピニング沈下修正工事 家の傾き修正 |
布基礎(無筋) | 19 | 14.5 | 56 | 116 |
| 広島市安佐北区三入 | 2016年6月 |
アンダーピニング沈下修正工事 家の傾き修正 |
布基礎(無筋) | 10 | 4.2 | 38 | 62 |
| 東広島市西条町吉行 | 2016年5月 |
アンダーピニング沈下修正工事 家の傾き修正 |
布基礎(無筋) | 11 | 6.4 | 60 | 40 |
| 広島市安佐南区相田 | 2016年4月 |
アンダーピニング沈下修正工事 家の傾き修正 |
布基礎(無筋) | 7 | 9.6 | 22 | 10 |
| 東広島市西条西条町西条 | 2016年3月 |
アンダーピニング沈下修正工事 家の傾き修正 |
ベタ基礎 | 8 | 6.4 | 18 | 25 |
| 広島市中区竹屋町 | 2016年2月 |
アンダーピニング沈下修正工事 家の傾き修正 |
布基礎(無筋) | 4 | 8 | 16 | 30 |
| 江田島市中区南竹屋町 | 2016年2月 |
アンダーピニング沈下修正工事 家の傾き修正 |
布基礎 | 5 | 7.7 | 19 | 29 |
| 広島市- | 2016年1月 |
アンダーピニング沈下修正工事 家の傾き修正 |
布基礎 | 11 | 11 | 34 | 15 |
| 広島市西区己斐西町 | 2015年11月 |
アンダーピニング沈下修正工事 家の傾き修正 |
布基礎 | 8 | 5.9 | 29 | 26 |
| 広島市安佐南区沼田町大字伴 | 2015年10月 |
アンダーピニング沈下修正工事 家の傾き修正 |
布基礎 | 10 | 9.6 | 34 | 55 |
| 広島市安佐北区小河原町 | 2015年9月 |
アンダーピニング沈下修正工事 家の傾き修正 |
布基礎 | 8 | 2.6 | 18 | 23 |
| 東広島市高屋町小谷 | 2015年9月 |
アンダーピニング沈下修正工事 家の傾き修正 |
布基礎(無筋) | 4 | 4.4 | 13.5 | 40 |
| 広島市安佐北区三入 | 2015年9月 |
アンダーピニング沈下修正工事 家の傾き修正 |
布基礎 | 2 | 5.6 | 10 | 17 |
| 広島市- | 2015年8月 |
アンダーピニング沈下修正工事 家の傾き修正 |
布基礎 | 10 | 2.3 | 29 | 51 |
| 広島市安芸区阿戸町 | 2015年8月 |
アンダーピニング沈下修正工事 家の傾き修正 |
布基礎 | 13 | 4.1 | 40 | 87 |
| 広島市西区己斐上 | 2015年6月 |
アンダーピニング沈下修正工事 家の傾き修正 |
布基礎(無筋) | 8 | 5.5 | 24 | 24 |
| 広島市佐伯区- | 2014年9月 |
アンダーピニング沈下防止工事 家の傾き修正 |
布基礎 | 3 | 3.4 | 10.5 | - |
| 三次市畠敷町 | 2014年8月 |
アンダーピニング沈下修正工事 家の傾き修正 |
布基礎 | 12 | 6.6 | 49 | 88 |
| 広島市- | 2014年7月 |
アンダーピニング沈下防止工事 家の沈下防止 |
布基礎 | 2 | 17.7 | 4 | 0 |
| 広島市安佐北区白木町三田 | 2014年6月 |
アンダーピニング沈下修正工事 家の傾き修正 |
布基礎 | 7 | 0.6 | 27 | 80 |
| 三次市十日市西 | 2014年5月 |
アンダーピニング沈下修正工事 家の傾き修正 |
布基礎 | 7 | 3.6 | 22 | 40 |
| 広島市安佐北区口田南 | 2014年4月 |
アンダーピニング沈下防止工事 家の傾き修正 |
布基礎(防湿コン) | 12 | 6.6 | 49 | 88 |
| 広島市中区江波東 | 2014年1月 |
基礎補強工事 地盤沈下による家の傾き防止工事 |
布基礎 | - | - | 18 | - |
| 広島市安芸区中野 | 2014年1月 |
アンダーピニング沈下防止工事 家の傾き修正 |
布基礎 | 11 | 2.8 | 27 | 60 |
| 広島市中区富士見町 | 2013年12月 |
アンダーピニング沈下修正工事 家の傾き修正 |
布基礎 | 4 | 22.6 | 14 | - |
| 廿日市市宮島口西 | 2013年12月 |
アンダーピニング沈下防止工事 家の傾き修正 |
布基礎 | 11 | 5.2 | 28 | 60 |
| 広島市安佐北区白木町三田 | 2013年12月 |
アンダーピニング沈下防止工事 家の傾き修正 |
ベタ基礎 | 20 | 4.5 | 56 | 110 |
| 広島市東区牛田東 | 2013年11月 |
アンダーピニング沈下防止工事 家の傾き修正 |
布基礎 | 6 | 2.8 | 9 | 18 |
| 広島市中区東白島町 | 2013年9月 |
アンダーピニング沈下防止工事 家の傾き修正 |
布基礎 | 20 | 7 | 58 | 50 |
| 呉市- | 2013年4月 |
アンダーピニング沈下防止工事 家の傾き修正 |
布基礎 | 2 | 2.4 | 2 | 0 |
| 広島市安佐北区白木町志路 | 2013年2月 |
柱取り替えの為の屋根天井支持工事 家の傾き修正 |
- | - | - | - | 0 |
| 庄原市- | 2013年1月 |
アンダーピニング沈下修正工事 家の傾き修正 |
基礎無し | 5 | 3.5 | 0 | 20 |
| 廿日市市廿日市市新宮 | 2012年12月 |
アンダーピニング沈下修正工事 家の傾き修正 |
レンガ基礎 | 22 | 11 | 40 | 70 |
| 広島市安佐南区長楽寺 | 2012年11月 |
アンダーピニング沈下修正工事 家の傾き修正 |
布基礎 | 16 | 4.7 | 53 | 65 |
| 広島市安佐北区落合南 | 2012年9月 |
アンダーピニング沈下修正工事 家の傾き修正 |
布基礎 | 4 | 3.4 | 16 | 28 |
| 広島市安佐南区安東 | 2012年8月 |
アンダーピニング防止工事 家の傾き修正 |
布基礎 | 4 | 3.2 | 8 | 11 |
| 広島市- | 2012年5月 |
アンダーピニング沈下修正工事 家の傾き修正 |
布基礎 | 24 | 5.5 | 65 | 100 |
| 広島市- | 2012年5月 |
基礎打ち替えサポート工事 |
無筋/布基礎 | - | - | - | - |
| 広島市安佐南区沼田町伴 | 2012年3月 |
アンダーピニング沈下修正工事 家の傾き修正 |
布基礎 | 4 | 4 | 14 | 14 |
| 広島市安佐北区口田南 | 2011年12月 |
アンダーピニング沈下修正工事 家の傾き修正 |
ベタ基礎 | 14 | 8 | 45 | 179 |
| 広島市- | 2011年12月 |
アンダーピニング沈下修正工事 家の傾き修正 |
基礎無し | 9 | 4.4 | 0 | 58 |
| 広島市四季が丘 | 2011年9月 |
アンダーピニング沈下修正工事 家の傾き修正 |
布基礎 | 17 | 10 | 36 | 31 |
| 広島市安佐北区白木町三田 | 2011年7月 |
基礎打ち替え工事 家の傾き修正 |
ブロック基礎 | - | - | - | - |
| 広島市- | 2011年7月 |
アンダーピニング沈下修正工事 家の傾き修正 |
布基礎 | 9 | 4 | 25 | 47 |
| 広島市安佐北区三入東 | 2011年6月 |
アンダーピニング沈下修正工事 家の傾き修正 |
布基礎 | 1 | 4 | 4 | 15 |
| 廿日市市- | 2011年6月 |
アンダーピニング沈下修正工事 家の傾き修正 |
布基礎 | 10 | 7.8 | 35 | 51 |
| 広島市- | 2011年5月 |
アンダーピニング沈下修正工事 家の傾き修正 |
布基礎 | 3 | 4 | 8 | 20 |
| 廿日市市- | 2011年4月 |
アンダーピニング沈下修正工事 家の傾き修正 |
布基礎 | 9 | 4 | 20 | 35 |
| 広島市- | 2011年4月 |
アンダーピニング沈下修正工事 家の傾き修正 |
無筋/布基礎 | 6 | 8 | 18 | 59 |
| 安芸高田市- | 2011年4月 |
アンダーピニング沈下修正工事 家の傾き修正 |
ブロック基礎 | 9 | 3 | 25 | 55 |
| 広島市東区牛田新町 | 2011年3月 |
アンダーピニング沈下修正工事 家の傾き修正 |
無筋/布基礎 | 10 | 6 | 30 | 90 |
| 広島市佐伯区皆賀 | 2011年2月 |
アンダーピニング沈下修正工事 家の傾き修正 |
布基礎 | 6 | 5 | 18 | 30 |
| 広島市安佐南区緑井 | 2010年12月 |
地盤改良工事 |
- | - | - | - | - |
| 広島市- | 2010年12月 |
アンダーピニング沈下修正工事 家の傾き修正 |
布基礎 | 8 | 5 | 30 | 20 |
| 広島市- | 2010年12月 |
アンダーピニング沈下修正工事 家の傾き修正 |
布基礎 | 11 | 5 | 24 | 65 |
| 広島市安佐北区三入南 | 2010年11月 |
アンダーピニング沈下修正工事 家の傾き修正 |
基礎無し | 9 | 3 | 0 | 150 |
| 広島市南区宇品御幸 | 2010年11月 |
アンダーピニング防止工事 家の傾き修正 |
布基礎 | 4 | 20 | 12 | 7 |
| 広島市- | 2010年10月 |
駐車場架台移動工事 |
- | - | - | - | - |
| 安芸高田市甲田町 | 2010年8月 |
アンダーピニング沈下修正工事 家の傾き修正 |
無筋/布基礎 | 3 | 5 | 4 | 25 |
| 広島市- | 2010年8月 |
駐車場鉄骨柱補強工事 |
- | - | - | - | - |
| 広島市- | 2010年7月 |
アンダーピニング沈下修正工事 家の傾き修正 |
無筋/布基礎 | 7 | 4 | 21 | 65 |
| 東広島市- | 2010年6月 |
アンダーピニング沈下修正工事 家の傾き修正 |
布基礎 | 16 | 5 | 35 | 25 |
| 広島市- | 2010年5月 |
アンダーピニング沈下修正工事 家の傾き修正 |
布基礎 | 14 | 4 | 42 | 105 |
| 広島市- | 2010年4月 |
アンダーピニング沈下修正工事 家の傾き修正 |
布基礎 | 6 | 4.8 | 11 | 55 |
| 広島市- | 2010年1月 |
アンダーピニング沈下修正工事 家の傾き修正 |
布基礎 | 13 | 8 | 36 | 100 |
場所:施工場所
時期:施工時期
工事名:どのような工事を行ったか
価格帯(税込):おおよその価格帯
基礎形状:基礎の形状(ベタ基礎/布基礎/無筋布基礎/ブロック基礎など)
杭数(本):鋼管杭を施工した箇所本数
最長杭の長さ(m):鋼管杭が最長何m地中に入って家屋を支えているかのメートル数
基礎補強の長さ(m):基礎に鉄板を施工し、基礎の補強を行った範囲
持ち上げ量(mm):ジャッキアップにより家屋を持ち上げた量